top of page
Affordable Builders transparent logo

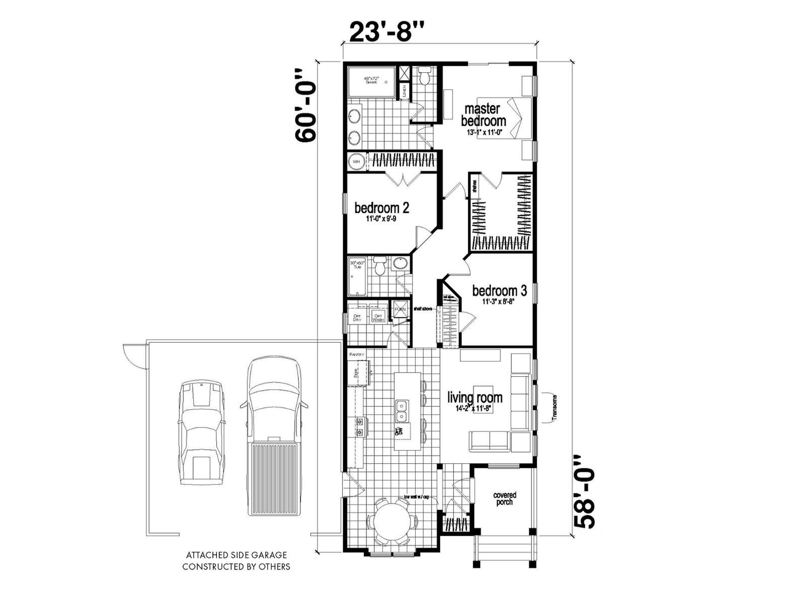
Caribou

Bedrooms

Size

Bathrooms

Garage

3

1336

2

Attached

2460H32G01

Genesis

Gallery

bottom of page